Michael Street, Waterford

1,500 per month
  • Commercial

7 photos

  • Google +  Pinterest

Ground Floor Retail Unit at 42 Michael Street, Waterford

This ground floor retail unit occupies a prime position on Michael Street in the heart of Waterford City.
Extending to approximately 60 sq. m, the unit benefits from excellent visibility and a high volume of both pedestrian and vehicular footfall. Nearby occupiers include Dunnes Ladieswear, Elverys Intersport, Dealz, and TRM, while City Square Shopping Centre is just a 2 minute walk away and Penneys is located just a four minute walk away.
Most recently trading as a bookmakers, the unit is versatile in nature and would be suitable for a variety of uses, subject to the relevant planning permission.

Rent being sought: �1,500 per month plus rates and building insurance contribution. Rates liability for 2025 was circa �3115 per annum.

Contact Barry Murphy Auctioneers on 051-858444

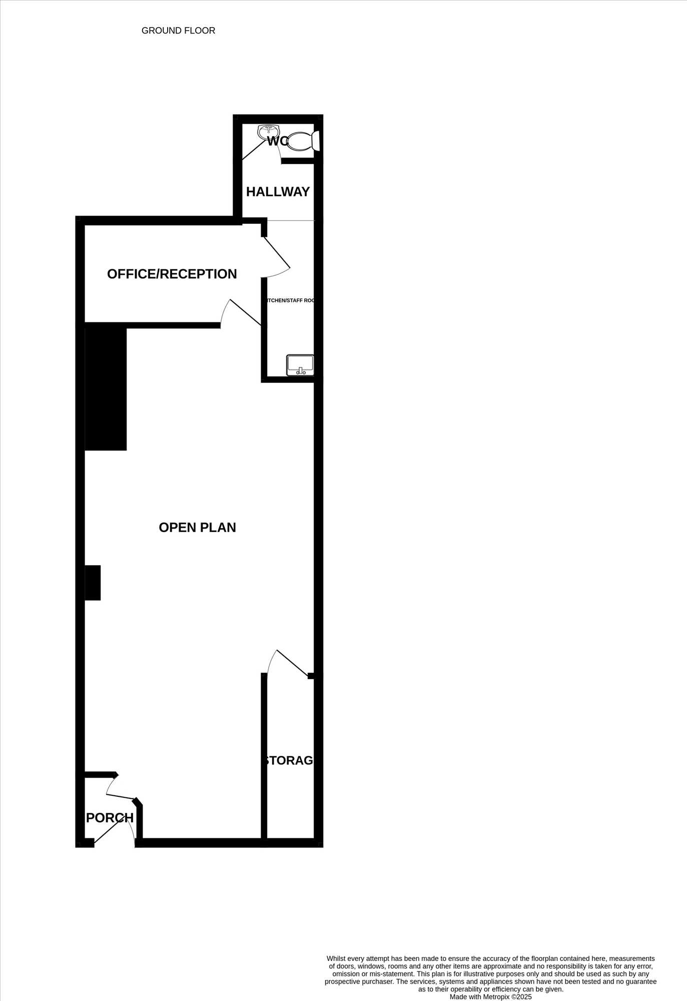
Entrance Porch: 1.25m x 1.12m.
Open plan area: 9.73mx 4.48m.
Cash desk area: 1.97m x 3.5m.
Back Hall/sink area: 3m x 1.02m. Plus 1.12m x 1.5m.
WC: 0.77m x 1.47m.

Reference: BMA1004254


Tenant Fees

Disclaimer

These particulars are intended to give a fair description of the property but their accuracy cannot be guaranteed, and they do not constitute an offer of contract. Intending purchasers must rely on their own inspection of the property. None of the above appliances/services have been tested by ourselves. We recommend purchasers arrange for a qualified person to check all appliances/services before legal commitment.