Kilkenny Retail & Business Park, Ring Road

POA per year
  • Commercial

29 photos

  • Google +  Pinterest

Former Car Showrooms To Let � Approx. 27,891 sq ft

Location
This prominent property is situated within the Kilkenny Retail and Business Park on the N10 Waterford Road, just outside Kilkenny City. The location benefits from a high volume of daily passing traffic and excellent accessibility, being approximately 6.5 km from the M9 Dublin�Waterford Motorway.
Kilkenny, located in Ireland�s south-east region, lies approximately 125 km south of Dublin and 45 km north of Waterford City. The city has a population of around 28,000 and serves as a key commercial and cultural centre for the region.

Description
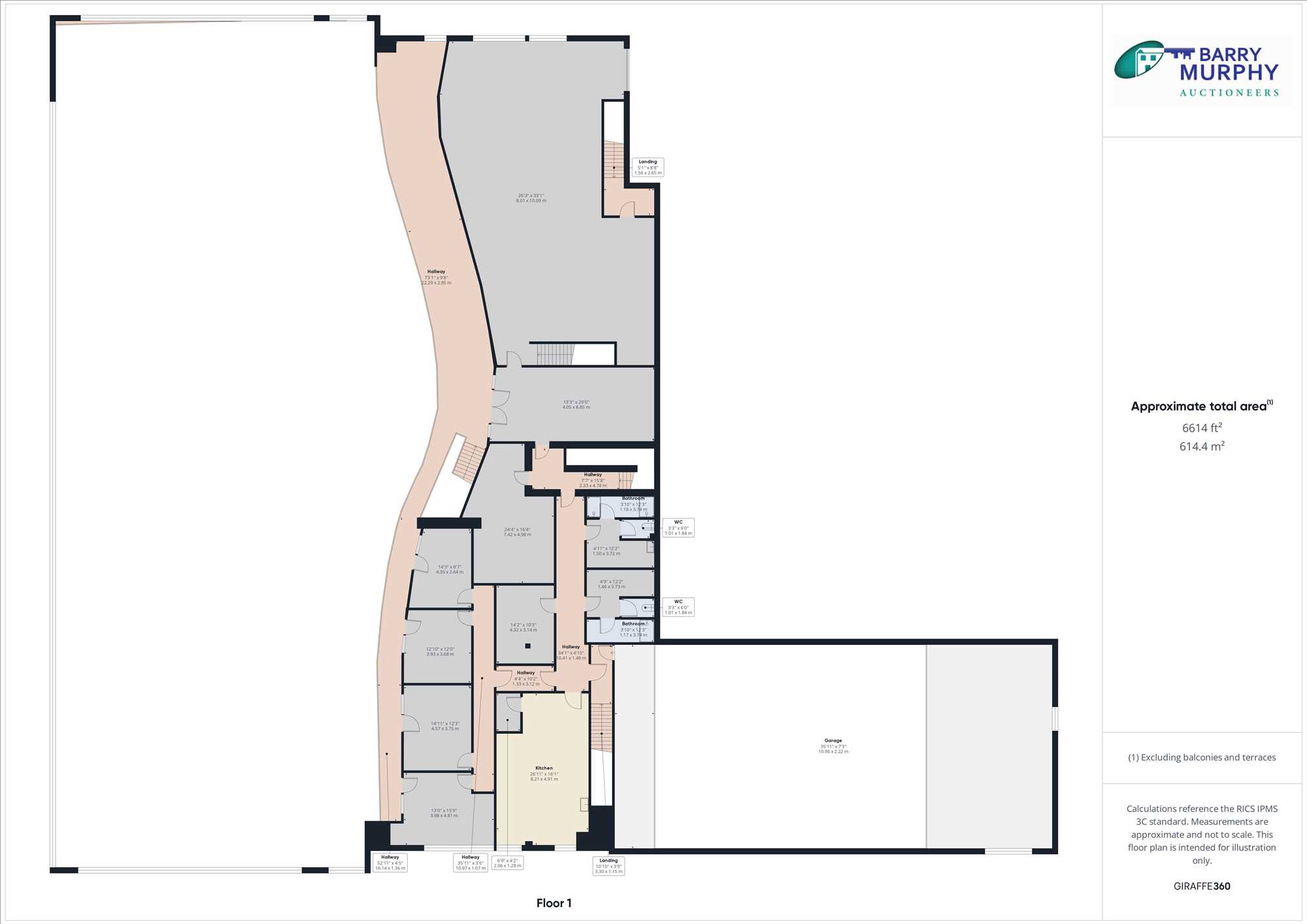
The property extends to approximately 27,892 sq ft (2,591 sq m) in total, comprising 21,277 sq ft (1,976 sq m) on the ground floor and 6,614 sq ft (616 sq m) on the first floor.
The building features large glazing panels to the front, providing excellent natural light and maximum product exposure � ideal for showcasing goods or creating an inviting commercial frontage.
The property also benefits from ample on-site parking, offering convenience for staff, customers, and visitors alike.

The surrounding area features a strong mix of automotive, retail, and hospitality occupiers. Notable nearby businesses include Morrissey Motors, Laharts Garage, Boland O�Brien Kilkenny, The Springhill Hotel,
Woodie�s, DID Electrical, Ken Black Toys & Nursery, KFC, Costa Coffee, EZ Living, Harry Corry, Homefocus at Hickeys, JYSK, and Petmania, among others.

The property is suitable for a wide variety of commercial uses, subject to the necessary planning permission, such as retail, offices, medical and light industrial purposes.
The property can potentially be sub divided if necessary.

Contact Barry Murphy Auctioneers on 051-858444

Reference: BMA1004245


Tenant Fees

Disclaimer

These particulars are intended to give a fair description of the property but their accuracy cannot be guaranteed, and they do not constitute an offer of contract. Intending purchasers must rely on their own inspection of the property. None of the above appliances/services have been tested by ourselves. We recommend purchasers arrange for a qualified person to check all appliances/services before legal commitment.