Henry St Terrace, Waterford

195,000

2 Bedrooms / 1 Bathrooms / 2 Reception

  • Terraced

13 photos

  • Google +  Pinterest

Well maintained two bedroom terraced house situated in Henry St Terrace, just off Manor St in the heart of Waterford city. The city centre and all amenities are within a 5 minute walk of this property. Enjoy the convenience of city living with SETU�s College Street Campus, the Odeon Cinema, and Tesco Poleberry all less than five minutes away on foot. A range of excellent primary and secondary schools, including Mount Sion, Presentation, De La Salle, and Newtown, are all within a 10�15 minute walk.

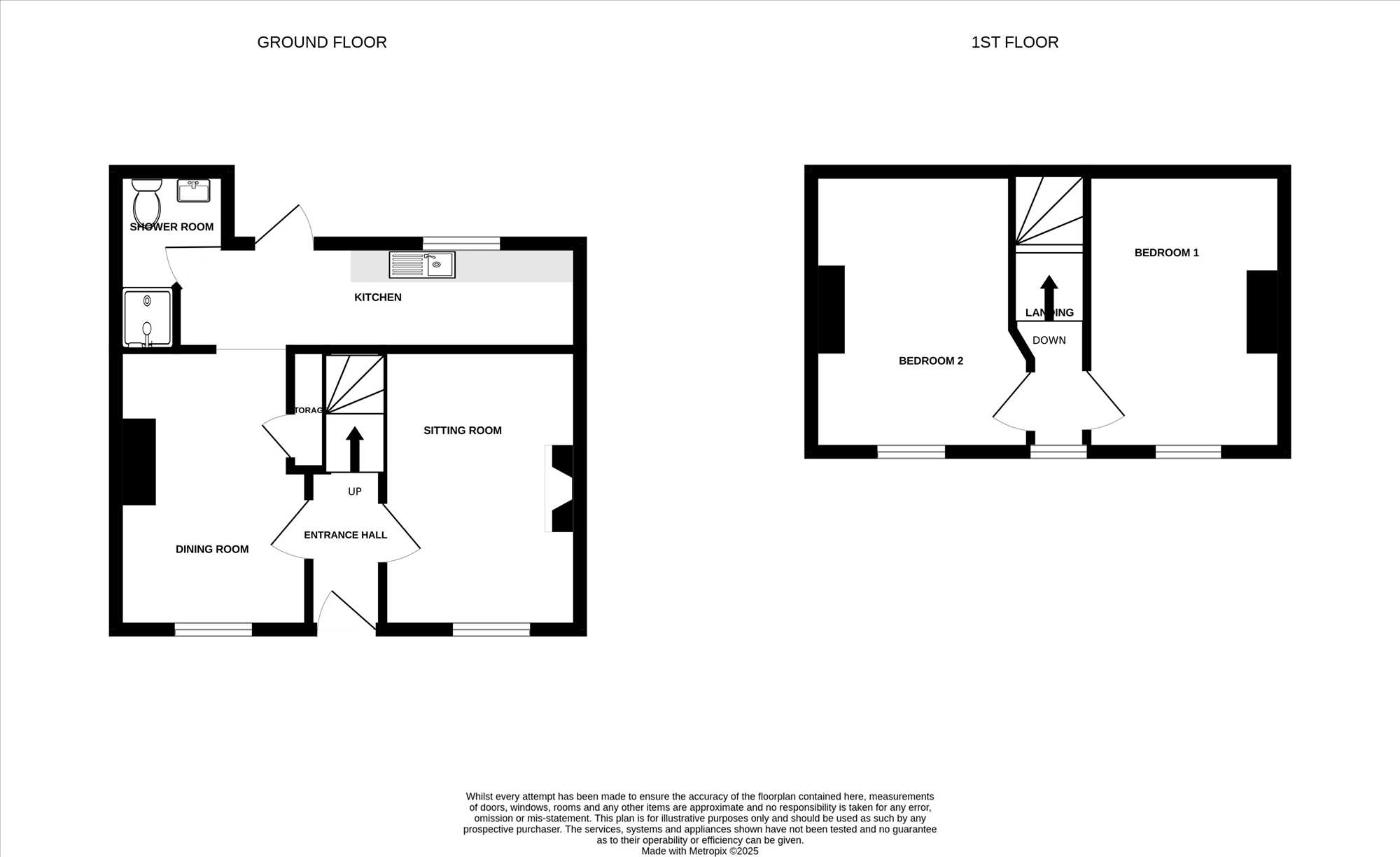
Accommodation comprises of entrance hallway, living room, dining room, kitchen and shower room on the ground floor, with two bedrooms on the first floor. The property has the benefit of a C2 BER rating, PVC double glazed windows, composite front door, gas fired central heating and a small rear yard.

This would make an ideal starter home for first time buyers or an investment property.

Viewings can be arranged through Sole Agents Barry Murphy Auctioneers.

Ground Floor
Entrance Hallway: 2.5m x 0.96m. Tiled floor.
Sitting Room: 2.56m x 3.63m. Laminate floor, blinds, fireplace.
Dining Room: 3.6m x 2.53m. Tiled floor, blinds, storage press.
Kitchen: 5.24m x 1.37m. Tiled floor, fitted kitchen with integrated oven & hob, door to rear yard.
Shower Room: 1.46m x 2.3m. Partially tiled, WC, wash hand basin with vanity unit.
First Floor
Bedroom 1: 2.55m x 3.66m. Laminate floor, blinds.
Bedroom 2: 3.66m x 2.59m. Laminate floor, blinds.

Reference: BMA1004230


Tenant Fees

Disclaimer

These particulars are intended to give a fair description of the property but their accuracy cannot be guaranteed, and they do not constitute an offer of contract. Intending purchasers must rely on their own inspection of the property. None of the above appliances/services have been tested by ourselves. We recommend purchasers arrange for a qualified person to check all appliances/services before legal commitment.