Ardleigh, Bracken Grove, Waterford

225,000

2 Bedrooms / 1 Bathrooms / 1 Reception

  • Terraced

14 photos

  • Google +  Pinterest

Two bedroom terraced property situated in a quiet cul de sac of this sought after development. Located just minutes from the Outer Ring Road and within walking distance of The Ursuline primary and secondary schools, along with local shops and amenities. Waterford city centre is a 7 minute drive from the property and there is a regular bus service operating daily nearby.

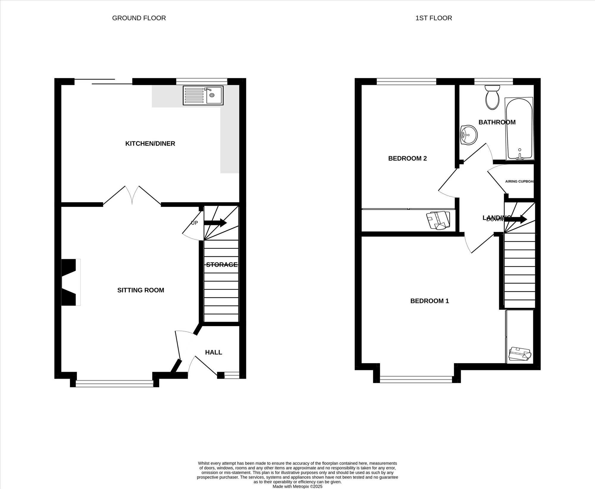
Accommodation comprises of entrance porch, sitting room and kitchen/diner on the ground floor, with two bedrooms and family bathroom on the first floor. The property has the benefit of gas fired central heating, double glazed windows and a C3 BER rating. There is a garden to the rear set in lawn and driveway parking to the front.

The property would make an ideal starter home as well as appealing to the investor market. For further information or to arrange a viewing contact Sole Agents Barry Murphy Auctioneers on 051 858444.

Ground Floor
Entrance Hall: 1.34m x 1.88m. Tiled floor.
Sitting Room: 4.44m x 3.72m. Laminate floor, bay widows, blinds, fireplace with gas fire, under stairs storage press, double doors to
Kitchen/Diner: 2.98m x 4.8m. Tiled floor, BLINDS, fitted kitchen, sliding door to rear garden.
First Floor
Bedroom 1: 3.44m x 3.72m. Carpet, blinds, fitted wardrobes.
Bedroom 2: 3.97m x 2.57m. Carpet, blinds, fitted wardrobes.
Bathroom: 2.09m x 2.08m. Tiled floor, WC, wash hand basin, bath either electric shower.

Reference: BMA1004225


Tenant Fees

Disclaimer

These particulars are intended to give a fair description of the property but their accuracy cannot be guaranteed, and they do not constitute an offer of contract. Intending purchasers must rely on their own inspection of the property. None of the above appliances/services have been tested by ourselves. We recommend purchasers arrange for a qualified person to check all appliances/services before legal commitment.