2A The Mall, Apartments 1, 2 & 3, Waterford

450,000

3 Bedrooms / 3 Bathrooms / 3 Reception

  • Flat/Apartment

23 photos

  • Google +  Pinterest

Barry Murphy Auctioneers are pleased to bring this exciting investment opportunity to the market. 2A The Mall comprises three studio apartments, ideally located in the heart of Waterford City�s renowned Viking Triangle, an area steeped in culture and history and offering a wide range of bars, caf�s, restaurants and retail amenities. With galleries and theatres nearby, this property truly has everything on its doorstep and is also just a 20-minute drive from the coast. The property is surrounded by a rich cultural offering, with five museums within 5 minutes walking distance, including Reginald�s Tower, Waterford Medieval Museum, Bishop�s Palace Museum, the Museum of Time, and the Irish Silver Museum. The eagerly awaited North Quays Development and Transport Hub are easily accessible from the property.
The property further benefits from an outdoor area at second floor level, offering exceptional views of Reginald�s Tower and the River Suir.

A key feature of this multi unit property is the absence of management fees.

Contact Barry Murphy Auctioneers on 051-858444

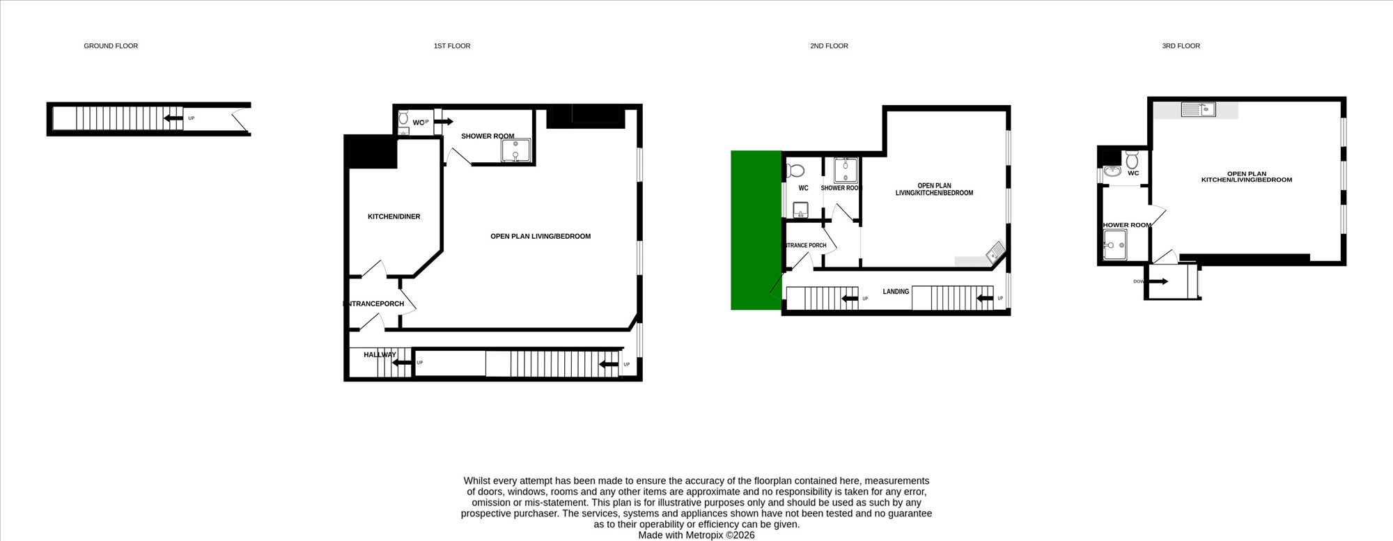
Apartment 1 - BER D2
First Floor
Entrance Porch: 1.56m x 1.64m. Laminate floor.
Kitchen: 4.1m x 2.9m. Tiled floor, fitted units.
Open plan bedroom/living: 7.3m x 4.86m. Laminate floor.
Shower Room: 2.8m x 1.3m. Tiled floor, shower room.
WC: 0.9m x 1.4m. WC, wash hand basin.

Apartment 2 - BER D1
Second Floor
Entrance Porch: 1.38m x 1.32m. Laminate floor.
Open plan bedroom/living/kitchenette: 4.4m x 4.6m. Laminate floor, sink area.
Shower Room: 1.33m x 1.9m Partially tiled.
WC: 1.45m x 1.85m. Tiled floor, WC, wash hand basin.

Apartment 3 - BER D1
Top Floor
Open plan bedroom/living/kitchenette: 5.9m x 5.7m. Laminate floor, sink area.
Shower Room: 1.5m x 2.7m. Tiled floor, electric shower.
WC: 1.32m x 1.5m. Tiled floor, WC, wash hand basin.

Reference: BMA1004258


Tenant Fees

Disclaimer

These particulars are intended to give a fair description of the property but their accuracy cannot be guaranteed, and they do not constitute an offer of contract. Intending purchasers must rely on their own inspection of the property. None of the above appliances/services have been tested by ourselves. We recommend purchasers arrange for a qualified person to check all appliances/services before legal commitment.